HEAT L 4G S 70.44.33.24 | Vysoká kvalita a výkon | Váš e-shop
DOHODNITE SI CENU

DORUČENÍ DO 24 HODÍN

Pre tovar skladom

AUTORIZOVANÝ PREDAJCA

Krbov, kachlí, pecí, sporákov, grilov, komínových systémov

KONTAKT

vano.kozuby@gmail.com +421901716757      +421905716757

Shopping cart 0 (položky)

Máte 0 produkty v košíku

V nákupnom košíku nie sú žiadne položky

DPH 0,00 €
Spolu: 0,00 €

Ceny s DPH

Pokladňa Košík

Produkt bol úspešne pridaný do vášho košíku

Množstvo
Spolu

Počet položiek v košíku: 0 Vo vašom košíku je 1 produkt.

Spolu za produkty: (s DPH)
Spolu za doručenie: (s DPH) Doručenie zdarma!
DPH 0,00 €
Spolu (s DPH)
Pokračovať v nákupe Pokračovať

Kategórie

Nový
ROMOTOP HEAT L 4G S 70.44.33.24 - krbová vložka rohová s deleným sklom

ROMOTOP HEAT L 4G S 70.44.33.24 - krbová vložka rohová s deleným sklom

1 757,70 €

BEŽNÁ CENA: 1 890,00 € UŠETRÍTE: 132,30 €

HL4SX 24

Výrobca: Romotop, Česko

Predaj:   Styl Kozvan, Slovensko

KLIKNITE A DOHODNITE SI CENU

Technické špecifikácie sa môžu zmeniť bez výslovného upozornenia. Obrázky majú iba informatívny charakter.

Rohové krbové vložky HEAT s otváraním dvierok do strany sú pôsobivým doplnkom interiéru v modernom štýle. Nechajte sa podmaniť príjemným teplom, ktoré zútulní každý domov a dodá mu nadčasový dizajn a osobitú atmosféru.

Krbové vložky HEAT sú určené na konvekčnú aj akumulačnú prevádzku s použitím odvetrávacích mriežok. Rohové sklo (ľavé, pravé) vložky je z dvoch častí. Rám dverí je vyrobený zo špeciálneho tuhého valcovaného profilu. Sklo dvierok je dizajnovo potlačené. Vložky disponujú systémom CPV – centrálny prívod externého vzduchu. Spaľovacia komora je vyložená šamotovými tvarovkami a výklopným liatinovým roštom s popolníkom. Spaľovacia komora je vyložená špeciálnym odolným materiálom IGNITON, dostupným vo svetlo sivom alebo čiernom prevedení podĺa preferencie zákazníka. Liatinový rošt je výklopný a obsahuje praktický popolník. Predohrev sekundárneho vzduchu zaisťuje čisté sklo. Reguláciu primárneho a sekundárneho prívodu vzduchu možno riadiť jediným ovládacím prvkom. Ku krbovým vložkám je možné dokúpiť bočnú akumulačnú súpravu a horné akumulačné prstence MAMMOTH, ktoré predĺžia čas sálania tepla o viac ako 12 h. Inovatívny systém vedenia spalín DOUBLE SPIN zvyšuje účinnosť a ekologickosť krbovej vložky.


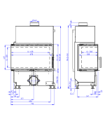
Technické parametre:
Výška: 1086 mm
Šírka: 744 mm                              
Hĺbka: 419 mm                             
Hmotnosť: 107 kg                       
Regulovateľný výkon: 4,5 - 11,7 kW        
Priemer dymovodu: 150 mm          
Priemer CPV: 150 mm                   
Ťah: 12 Pa                                 
Účinnosť: 80 %                             
Priemerná spotreba dreva: 2,7 kg/h 

- max. 2 bočné akumulačné sady

Výška [mm] 1086
Šírka [mm] 744
Hĺbka [mm] 407
Nominálny výkon [kW] 5,1-10kW
Výkon do vody [kW] 4,5-11,7
Váha [kg] 128
Otváranie dvierok do boku
Presklenie rohové - ľavé
Externý prívod vzduchu áno
Prikladacie dvierka nie
Materiál oceľové
Možnosť akumulačnej sady áno
Palivo drevo
Druh ohrevu teplovzdušné
Primer dymovodu [mm] 150

Podobné produkty

Prosím čakajte...

Dohodnite si vlastnú cenu

Ďakujeme za návštevu našej stránky.

Radi Vám poskytneme poradenstvo pri výbere tovaru, informácie ohľadne skladových zásob a okrem ďalších služieb aj možnosť dohodnúť si individuálnu cenu na tovary z nášho sortimentu.

Zavolajte nám na telefónne čísla: 0905 716 757, 0901 716 757, alebo nám nechajte správu s kontaktom, na ktorý sa Vám ozveme.

Poslať