Krbová vložka KRTKI REGNOR s trojstranným presklením | Vysoká účinnosť, moderný dizajn a bezpečnosť
DOHODNITE SI CENU

DORUČENÍ DO 24 HODÍN

Pre tovar skladom

AUTORIZOVANÝ PREDAJCA

Krbov, kachlí, pecí, sporákov, grilov, komínových systémov

KONTAKT

vano.kozuby@gmail.com +421901716757      +421905716757

Shopping cart 0 (položky)

Máte 0 produkty v košíku

V nákupnom košíku nie sú žiadne položky

DPH 0,00 €
Spolu: 0,00 €

Ceny s DPH

Pokladňa Košík

Produkt bol úspešne pridaný do vášho košíku

Množstvo
Spolu

Počet položiek v košíku: 0 Vo vašom košíku je 1 produkt.

Spolu za produkty: (s DPH)
Spolu za doručenie: (s DPH) Doručenie zdarma!
DPH 0,00 €
Spolu (s DPH)
Pokračovať v nákupe Pokračovať

Kategórie

Kratki REGNOR 600/400 výsuvné dvierka, čierne ohnisko - trojstranná krbová vložka

3 128,52 €

BEŽNÁ CENA: 3 364,00 € UŠETRÍTE: 235,48 €

REGNOR/600/400/BLACK

Výrobca: Kratki, Poľsko

Predaj:   Styl Kozvan, Slovensko

KLIKNITE A DOHODNITE SI CENU

Technické špecifikácie sa môžu zmeniť bez výslovného upozornenia. Obrázky majú iba informatívny charakter.

REGNOR je krbová vložka, ktorá sa vďaka trojstrannému preskleniu stane srdcom každého interiéru. Oceľový stĺp dodáva krbu eleganciu a moderný štýl a zdôrazňuje jeho jedinečný vzhľad. Ide o ideálne riešenie pre ľudí, ktorí si cenia estetiku spojenú s funkčnosťou a chcú do svojho domova vniesť prvok luxusu a útulnosti. REGNOR bol navrhnutý pre maximálnu funkčnosť a efektivitu.

 

MAXIMÁLNE VYUŽITIE ENERGIE

Množstvo inovatívnych riešení použitých v krbe REGNOR znamená, že pri jeho používaní si môžete byť istí maximálnym využitím energie. To znamená, že krb bol navrhnutý tak, aby umožňoval čo najefektívnejšiu premenu dodanej energie na teplo.

Krb REGNOR je vybavený jedným ovládacím prvkom zodpovedným za integrovanú reguláciu prívodu vzduchu: primárny, sekundárny a vzduchová clona.

Nastavením regulátora prívodu vzduchu - od 0 do 50% - je vzduch nasmerovaný na zadnú stenu spaľovacej komory, čo podporuje spaľovací proces a efektívne spaľovanie plynov, čím sa znižuje emisia škodlivín do atmosféry. Okrem toho je vzduch distribuovaný cez kanály na bočné a predné sklá , čo pomáha udržiavať sklá čisté, zaisťuje optimálnu viditeľnosť ohňa a zlepšuje estetickú hodnotu krbu.

Nastavením regulátora prívodu vzduchu - od 50% do 100% - je vzduch privádzaný k zadnej stene spaľovacej komory a cez kanály na bočné a predné sklá. Okrem toho je vzduch nasmerovaný pod rošt krbu, čo podporuje proces zapaľovania.

REGNOR je vybavený dvoma deflektormi, ktoré vytvárajú prirodzený konvekčný kanál pre prúdenie výfukových plynov. To zvyšuje účinnosť spaľovania, zabezpečuje lepšie využitie energie, čo zároveň minimalizuje emisie škodlivých látok do atmosféry.

 

EKOLOGICKÉ SPAĽOVANIE

Krb spĺňa požiadavky EKOPROJECT a reštriktívnej nemeckej normy BlmschV II. Je určený pre domy s rekuperáciou tepla.

 

KONFORTNÉ POUŽÍVANIE A OSTATNÉ VÝHODY

Lišta - Dodáva krbu eleganciu a moderný štýl, zdôrazňujúc jeho jedinečný vzhľad.

Rošt - Zabezpečuje rovnomerné a efektívne spaľovanie dreva, čo vedie k lepšiemu využitiu paliva a zvýšeniu tepelnej účinnosti.

Prehĺbená spaľovacia komora - Umožňuje uložiť viac dreva a zabraňuje rozsypaniu popola pri pridávaní paliva, čo uľahčuje používanie a udržiavanie v čistote.

TERMOTEC - Teploakumulačný materiál, ktorý zvyšuje teplotu v krbe, takže po zhasnutí krbu sa ešte dlho uvoľňuje teplo do miestnosti, v ktorej sa nachádza. Dostupné v bielej alebo čiernej farbe.

Dekoratívne sklo -  Estetický čierny dekor dodáva krbu elegantný vzhľad, ktorý z neho robí nielen funkčný prvok, ale aj atraktívny doplnok interiéru.

Regulácia prívodu vzduchu - Ovládanie spaľovacieho procesu je výnimočne jednoduché a intuitívne. Aj ľudia bez skúseností s kozubmi si jednoducho upravia prúdenie vzduchu podľa svojich potrieb, čo zaisťuje pohodlie a komfort používania.

Dvojitý systém otvárania dverí - Lift up (mechanizmus gilotíny) a do strán - vľavo aj vpravo - umožňuje jednoduché nakladanie dreva a pohodlné čistenie skla, vďaka čomu je krb nielen estetický, ale aj mimoriadne praktický. Pri otváraní smerom nahor nezasahuje do obrysu miestnosti, ako je tomu u štandardných dverí na báze pántov a otvárania vľavo alebo vpravo. Vďaka tomuto riešeniu zaberá krb menej miesta, čo zvyšuje komfort používania a umožňuje lepšie usporiadanie interiéru.

 

Minimálna požadovaná veľkosť mriežky na výdaj vzduchu (cm2): ≥700

Minimálna požadovaná veľkosť mriežky na príjem vzduchu (cm2): ≥500

Technické parametre:
Nominálny výkon: 7 kW 
Rozsah vykurovacieho systému: 5 - 9,0 kW
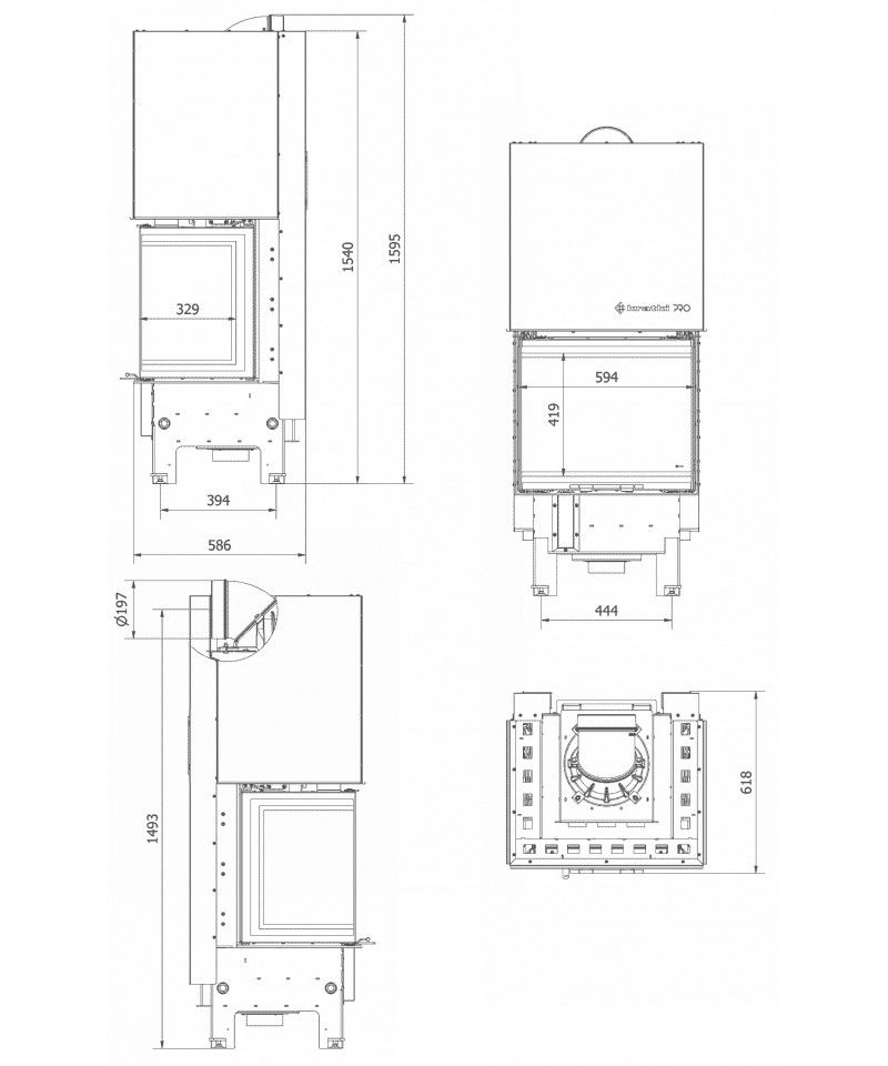
Výška: 1595 mm
Šírka: 594 mm
Hĺbka: 618 mm
Priemer dymovodu: 200 mm
Tepelná účinnosť: 82%
Teplota spalín: 188 °C
Hmotnosť: 268 kg
Maximálna dĺžka polien: 300 mm
Materiál: oceľ
Palivo: drevo, brikety 

Podobné produkty

Prosím čakajte...

Dohodnite si vlastnú cenu

Ďakujeme za návštevu našej stránky.

Radi Vám poskytneme poradenstvo pri výbere tovaru, informácie ohľadne skladových zásob a okrem ďalších služieb aj možnosť dohodnúť si individuálnu cenu na tovary z nášho sortimentu.

Zavolajte nám na telefónne čísla: 0905 716 757, 0901 716 757, alebo nám nechajte správu s kontaktom, na ktorý sa Vám ozveme.

Poslať